Porzione di trifamiliare in vendita

Rovato, Via Don Vittorio Basini - Sant'Andrea
€ 265.000
3 locali 3 locali
130 Mq 130 Mq
2 bagni 2 bagni

Porzione di trifamiliare in vendita

Rovato, Via Don Vittorio Basini - Sant'Andrea

Descrizione annuncio

In frazione a Rovato, Sant'Andrea proponiamo: Porzione di trifamiliare trilocale con entrata indipendente

In contesto tranquillo e riservato, proponiamo in vendita splendida porzione di trifamiliare con ingresso indipendente e giardino esclusivo sia sul fronte che sul retro dell’abitazione, ideale per chi desidera privacy e spazi esterni vivibili.

L’immobile si sviluppa su più livelli:

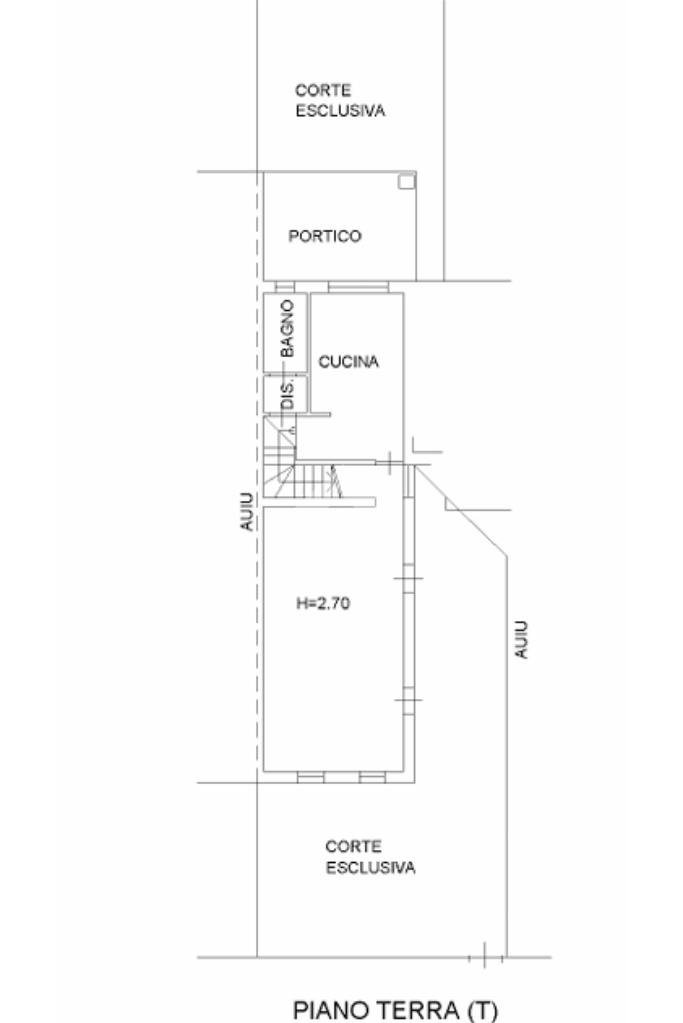
Piano Terra:

Accogliente zona giorno

Bagno di servizio finestrato

Cucina abitabile con accesso diretto al giardino sul retro, perfetto per pranzi all’aperto e momenti di relax

Primo Piano:

Camera da letto matrimoniale

Camera singola con balcone

Bagno finestrato

Piano Interrato:

Zona lavanderia

Spaziosa taverna con camino, ideale come area hobby

Accesso diretto al box auto

Soluzione ideale per famiglie che cercano indipendenza, comfort e spazi ben distribuiti in un contesto residenziale tranquillo.

Contattaci per maggiori informazioni o per fissare una visita.

Mostra tutto

Nelle vicinanze

Trasporto pubblico Trasporto pubblico
stazione di Rovato
stazione di Rovato
1,1 Km
stazione di Rovato Borgo
stazione di Rovato Borgo
1,2 Km
linea ambiente coccaglio
linea ambiente coccaglio
2,4 Km
Trasporto pubblico
2,7 Km
Ricariche auto elettriche Ricariche auto elettriche
Lidl Rovato | EnelX
2,0 Km
A2A Municipio di Rovato
2,8 Km
A2A Rovato Garibaldi
2,9 Km
Scuole Scuole
Scuola Primaria Duomo
2,2 Km
Scuole
2,2 Km
Scuola primaria
2,8 Km
Farmacia Farmacia
Farmacia
2,6 Km
Farmacia Comunale
2,8 Km
Supermercati Supermercati
MiniMarket
2,4 Km
Bar Bar
Bar
2,8 Km
Ristoranti Ristoranti
La Loggia
920 m
Villa Valenca
1,6 Km
Pizzeria Ristorante Il Veliero
2,1 Km
Officina del gusto
2,2 Km
La Vecchia Scuola
2,3 Km
Mostra tutto

Caratteristiche

Rif.:
61183030
Piano:
Su più livelli di 3
Totale piani:
3
Box:
1
Balconi:
1
Terrazzi:
1
Mostra tutto
Prezzo Prezzo
€ 265.000
Rata mutuo Rata mutuo
€ 1.259 / mese
Spese annue Spese annue
€ 50
Proponi il tuo prezzoProponi il tuo prezzo

Classe Energetica

F
F
F
F
F
F
F
F
F
Anno di costruzione:
1995
Riscaldamento:
Autonomo
Tipo impianto:
A pavimento
Tipo alimentazione:
Metano

Ti interessa visionare l'immobile?

Fissa un appuntamento  Fissa un appuntamento

Richiedi informazioni

Clicca su Leggi per aprire l'informativa
* Questi campi sono obbligatori

Calcola il tuo mutuo

Semplice e senza impegno
Anticipo

( % )
Mutuo

( % )

pochi semplici passi

inserisci i tuoi dati
Questionario completato
Grazie per aver richiesto un appuntamento senza impegno con un nostro Consulente del Credito e Assicurativo.

Hai inserito correttamente tutti i dati necessari e a breve riceverai una e-mail con un link da convalidare per inviare i tuoi dati.
Affiliato
Studio Rovato Srlu
Via XXV Aprile, 151 25038 Rovato (BS)
Via XXV Aprile, 151 25038 Rovato (BS)
Zona: Rovato
Mostra su mappa
Orari: Dal Lunedì al Venerdì dalle ore 9:00 alle 12:30 e dalle 14:30 alle 19:30. Sabato chiusura ore 12:30.
Affiliato
Studio Rovato Srlu
Via XXV Aprile, 151 25038 Rovato (BS)

2026 Tecnocasa Franchising S.p.A. - P. IVA 08365160152 - Via Monte Bianco 60/A 20089 Rozzano (MI). Ogni agenzia ha un proprio titolare ed è autonoma. Privacy policy | Policy utilizzo | Cookie policy