Casa di corte in vendita

Rovato, Via Fossato - Sant'Anna
€ 209.000
4 locali 4 locali
150 Mq 150 Mq
2 bagni 2 bagni

Casa di corte in vendita

Rovato, Via Fossato - Sant'Anna

Descrizione annuncio

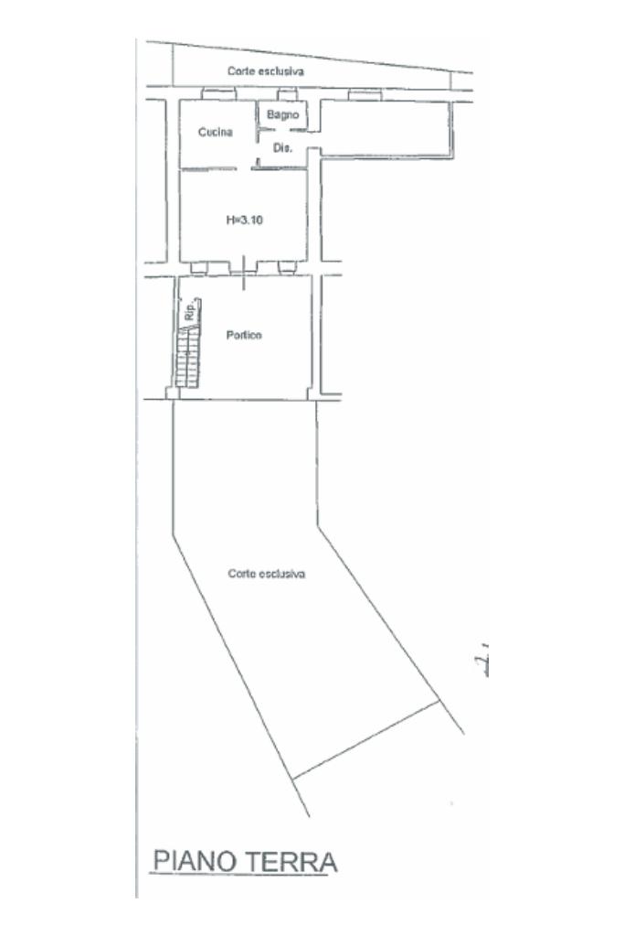
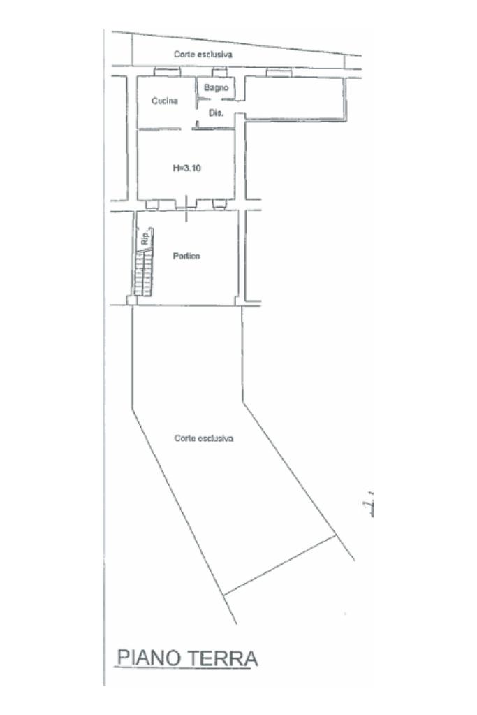
ROVATO – SANT’ANNA: Tecnocasa Rovato propone in esclusiva una porzione di cascina composta da due appartamenti completamente indipendenti, soluzione ideale per due nuclei familiari o per chi desidera un’abitazione con unità separata.

Il primo appartamento, situato al piano terra, si apre su un ampio e luminoso soggiorno, ben distinto dalla cucina abitabile. La zona notte, anch’essa al piano, comprende una spaziosa camera matrimoniale e un bagno finestrato completo di box doccia.

Il secondo appartamento, accessibile tramite scala esterna indipendente, offre una funzionale zona giorno con cucina separata, due camere da letto matrimoniali – di cui una con balcone – e un bagno finestrato dotato di box doccia.

Gli impianti elettrico e idraulico sono stati recentemente rifatti, garantendo maggiore sicurezza e efficienza.

Entrambe le unità condividono un giardino comune, perfetto per momenti di relax all’aperto e convivialità.


Mostra tutto

Nelle vicinanze

Trasporto pubblico Trasporto pubblico
stazione di Rovato
stazione di Rovato
3,0 Km
Scuole Scuole
Scuole
1,9 Km
Scuola Primaria Duomo
2,1 Km
Supermercati Supermercati
Famila
1,7 Km
MiniMarket
2,2 Km
Bar Bar
Bar
1,3 Km
Roll Bar
1,8 Km
Ristoranti Ristoranti
Villa Valenca
1,4 Km
Ristoranti
1,6 Km
La Vecchia Scuola
2,3 Km
La Loggia
2,8 Km
Mostra tutto

Caratteristiche

Rif.:
61183508
Piano:
1 di 1 (Piano basso)
Posti auto:
2
Balconi:
2
Camere da letto:
3
Arredamento:
Assente
Mostra tutto
Prezzo Prezzo
€ 209.000
Rata mutuo Rata mutuo
€ 993 / mese
Spese annue Spese annue
€ 0
Proponi il tuo prezzoProponi il tuo prezzo

Classe Energetica

G
G
G
G
G
G
G
G
G
Anno di costruzione:
1970
Riscaldamento:
Autonomo
Tipo impianto:
A radiatori
Tipo alimentazione:
Metano

Ti interessa visionare l'immobile?

Fissa un appuntamento  Fissa un appuntamento

Richiedi informazioni

Clicca su Leggi per aprire l'informativa
* Questi campi sono obbligatori

Calcola il tuo mutuo

Semplice e senza impegno
Anticipo

( % )
Mutuo

( % )

pochi semplici passi

inserisci i tuoi dati
Questionario completato
Grazie per aver richiesto un appuntamento senza impegno con un nostro Consulente del Credito e Assicurativo.

Hai inserito correttamente tutti i dati necessari e a breve riceverai una e-mail con un link da convalidare per inviare i tuoi dati.
Affiliato
Studio Rovato Srlu
Via XXV Aprile, 151 25038 Rovato (BS)
Via XXV Aprile, 151 25038 Rovato (BS)
Zona: Rovato
Mostra su mappa
Orari: Dal Lunedì al Venerdì dalle ore 9:00 alle 12:30 e dalle 14:30 alle 19:30. Sabato chiusura ore 12:30.
Affiliato
Studio Rovato Srlu
Via XXV Aprile, 151 25038 Rovato (BS)

2026 Tecnocasa Franchising S.p.A. - P. IVA 08365160152 - Via Monte Bianco 60/A 20089 Rozzano (MI). Ogni agenzia ha un proprio titolare ed è autonoma. Privacy policy | Policy utilizzo | Cookie policy