Trilocale in vendita

Rovato, Via del colle
€ 235.000
3 locali 3 locali
90 Mq 90 Mq
2 bagni 2 bagni

Trilocale in vendita

Rovato, Via del colle

Descrizione annuncio

ROVATO – San Donato Trilocale con Giardino, Taverna e Box Doppio

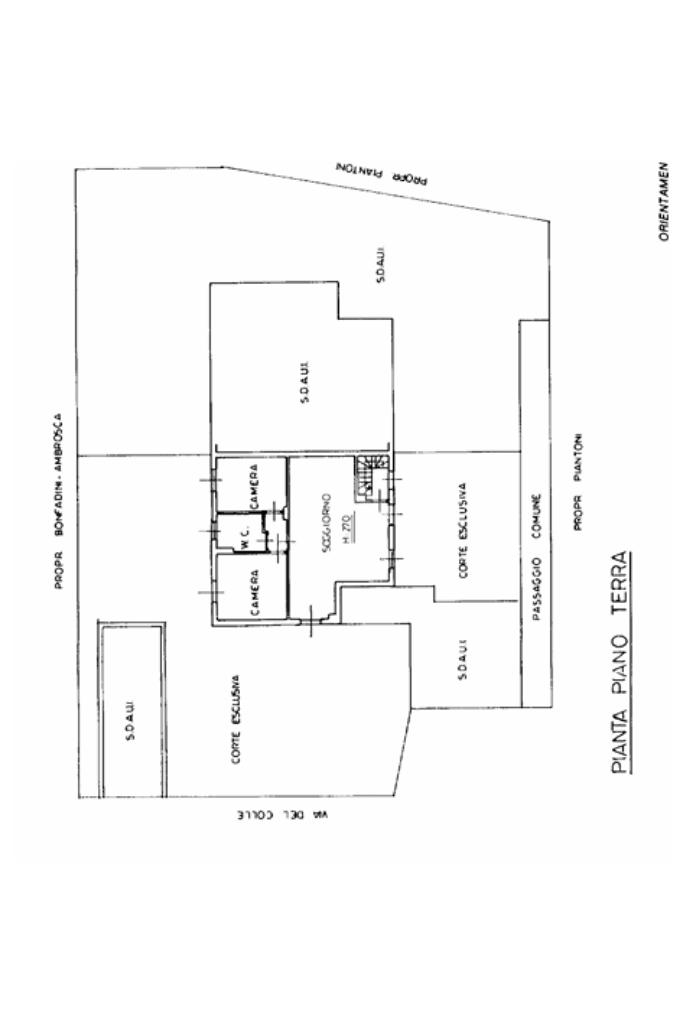
In tranquilla zona residenziale di Rovato, zona San Donato, proponiamo in vendita appartamento trilocale al piano terra con ingresso indipendente, ampio giardino privato su tre lati e collegamento interno al piano interrato.

L'immobile è composto da:

Luminoso soggiorno con cucina a vista in open space

Due camere da letto

Bagno finestrato

Al piano interrato, collegato direttamente dall'interno, troviamo:

Taverna accogliente

Locale lavanderia

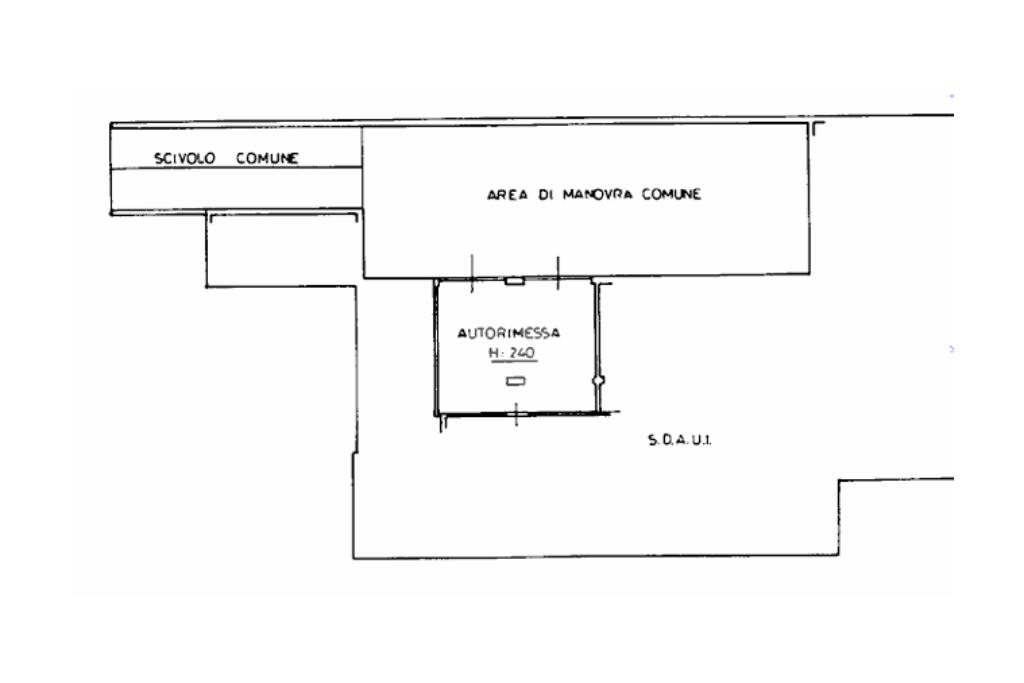
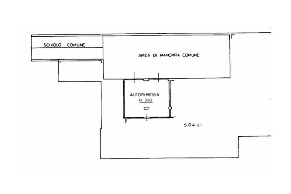
Box doppio in larghezza

Il giardino privato, ben curato e distribuito sui tre lati dell’abitazione, offre uno spazio ideale per momenti di relax all’aperto o per chi ama il verde.

Ottima soluzione per famiglie o coppie in cerca di comfort, privacy e spazi funzionali, in una delle zone più richieste di Rovato.

Mostra tutto

Nelle vicinanze

Trasporto pubblico Trasporto pubblico
stazione di Rovato Città
stazione di Rovato Città
1,2 Km
Cazzago San Martino
Cazzago San Martino
2,3 Km
Trasporto pubblico
1,1 Km
linea ambiente coccaglio
linea ambiente coccaglio
2,7 Km
Ricariche auto elettriche Ricariche auto elettriche
A2A Rovato Garibaldi
700 m
A2A Municipio di Rovato
810 m
A2A Casello di Rovato A4
950 m
Lidl Rovato | EnelX
1,7 Km
Ronco Calino
2,8 Km
Scuole Scuole
Scuola primaria
840 m
Scuole
1,4 Km
Farmacia Farmacia
Farmacia Comunale
820 m
Farmacia
960 m
Supermercati Supermercati
Eurospin
810 m
Negozi Negozi
Piazza Italia
900 m
Bar Bar
Antinoo bar gelateria
380 m
Bar Sport
1,1 Km
Bar
1,8 Km
Rock Out
3,0 Km
Ristoranti Ristoranti
Ristoranti
760 m
Sushiko
900 m
Ristorante Pizzeria Corona
1,1 Km
Pizzeria Ristorante Il Veliero
1,4 Km
Ristorante Osteria San Clemente
1,6 Km
Mostra tutto

Caratteristiche

Rif.:
61130133
Piano:
Terra con giardino di 2
Totale piani:
2
Box:
2
Terrazzi:
1
Camere da letto:
2
Mostra tutto
Prezzo Prezzo
€ 235.000
Rata mutuo Rata mutuo
€ 1.109 / mese
Spese annue Spese annue
€ 0
Proponi il tuo prezzoProponi il tuo prezzo

Classe Energetica

C
C
C
C
C
C
C
C
C
Anno di costruzione:
2005
Riscaldamento:
Autonomo
Tipo impianto:
A radiatori
Tipo alimentazione:
Metano

Ti interessa visionare l'immobile?

Fissa un appuntamento  Fissa un appuntamento

Richiedi informazioni

Clicca su Leggi per aprire l'informativa
* Questi campi sono obbligatori

Calcola il tuo mutuo

Semplice e senza impegno
Anticipo

( % )
Mutuo

( % )

pochi semplici passi

inserisci i tuoi dati
Questionario completato
Grazie per aver richiesto un appuntamento senza impegno con un nostro Consulente del Credito e Assicurativo.

Hai inserito correttamente tutti i dati necessari e a breve riceverai una e-mail con un link da convalidare per inviare i tuoi dati.
Affiliato
Studio Rovato Srlu
Via XXV Aprile, 151 25038 Rovato (BS)
Via XXV Aprile, 151 25038 Rovato (BS)
Zona: Rovato
Mostra su mappa
Orari: Dal Lunedì al Venerdì dalle ore 9.00 alle 12.30 e dalle 14.30 alle 19:30. Sabato chiusura ore 12:30.
Affiliato
Studio Rovato Srlu
Via XXV Aprile, 151 25038 Rovato (BS)

2025 Tecnocasa Franchising S.p.A. - P. IVA 08365160152 - Via Monte Bianco 60/A 20089 Rozzano (MI). Ogni agenzia ha un proprio titolare ed è autonoma. Privacy policy | Policy utilizzo | Cookie policy